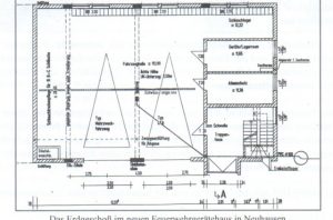
Gerätehaus
Werkstatt/Lager
Wir verfügen im Erdgeschoss über eine Werkstatt, sowie über ein separates Lager. Hier werden kleine Reparaturen oder Wartungsarbeiten durchgeführt. Zudem werden immer eine Palette Ölbindemittel, Ersatzflaschen für die Atemschutzgeräteträger sowie Schlauchmaterial gelagert.
Fahrzeughalle
Unsere Fahrzeughalle bietet 2 Stellplätze für Großfahrzeuge, auf denen unser LF10/6, sowie unser Mehrzweckfahrzeug untergestellt werden. An der Rückseite befinden sich die Spinde für die Einsatzbekleidung der Aktiven Mannschaft, sowie der Jugendgruppe.
Die Anschaffung einer Abgasabsaugung wurde 2018 realisiert und im Gerätehaus für beide Fahrzeuge angebracht.
Schlauchpflege
Im linken Bereich der Fahrzeughalle ist die Schrägtrockenanlage untergebracht. Hier werden die benutzten und gereinigten Schläuche zum Trocknen aufgehängt. Zudem ist dort der Stellplatz für die Schlauchreinigungsanlage.
Anbau
2016 wurde in Eigenregie durch die FFW Neuhausen ein Anbau an das Feuerwehrgerätehaus realisiert. Dieser dient unter Anderem als Lagerfläche für Kleingeräte, Ölbindemittel, aber auch als Unterstellplatz für ein Flachwasserschubboot samt Anhänger. Auch bei der Anschaffung des Anhängers hat sich die FFW Neuhausen finanziell beteiligt.


